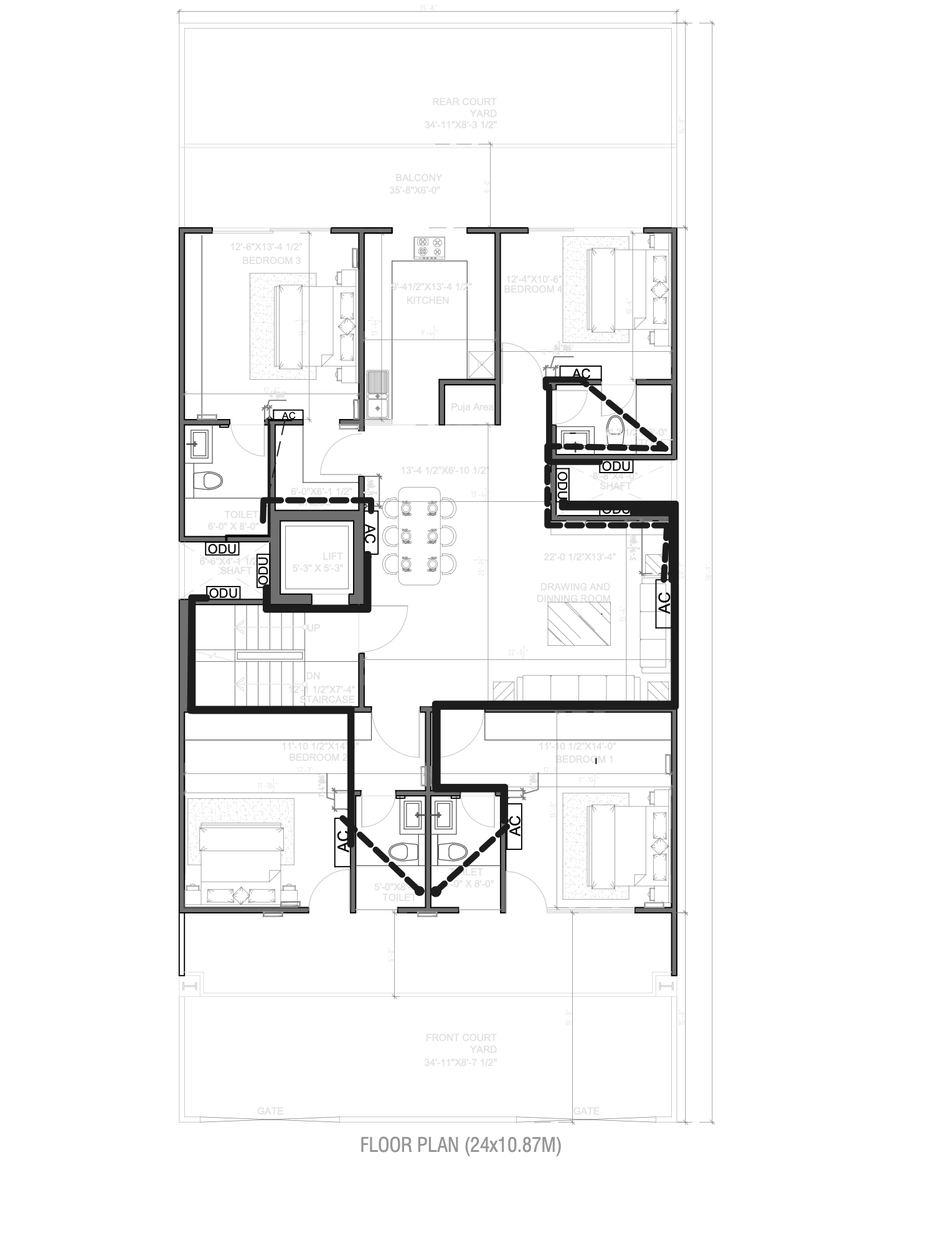
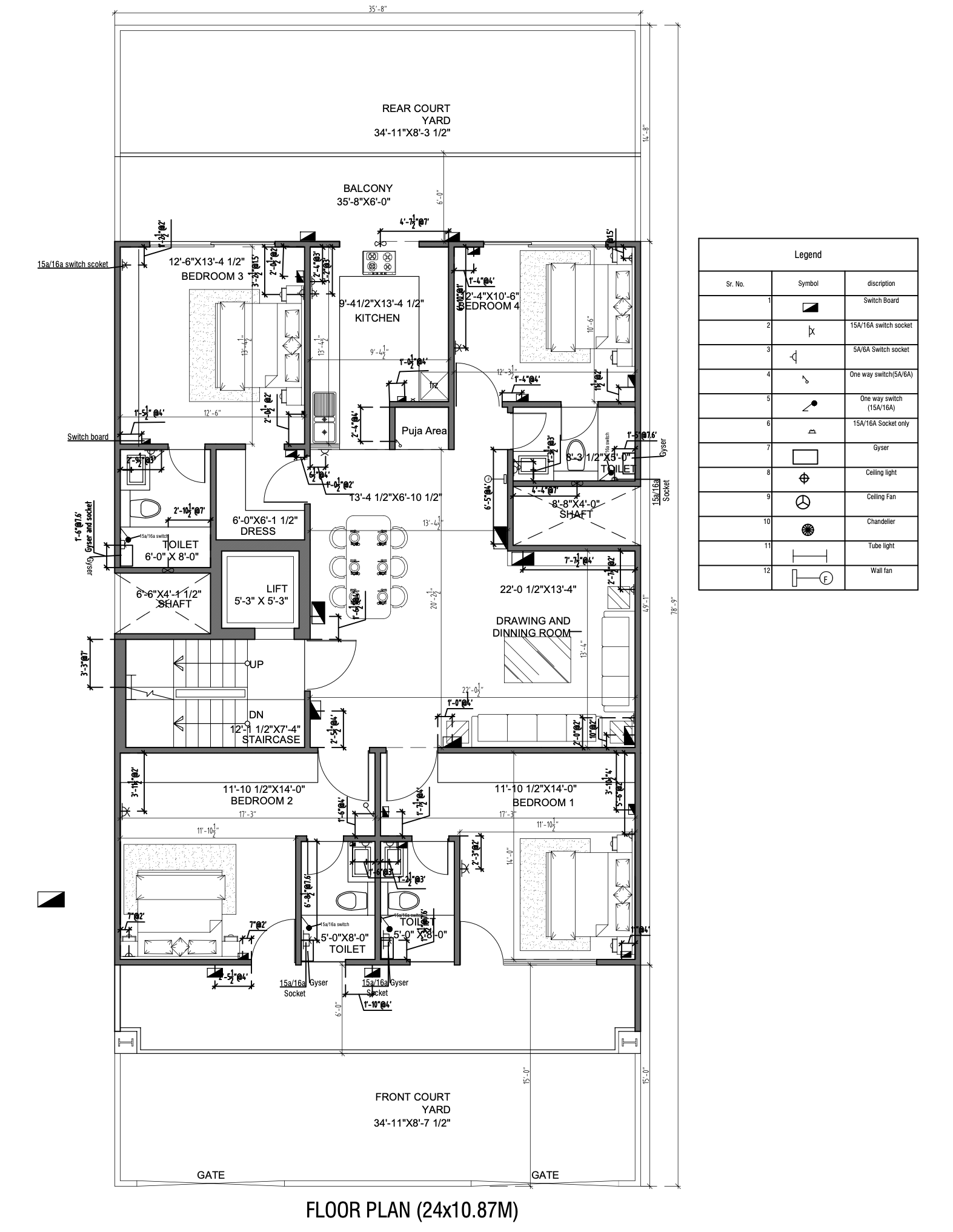
This project presents apartment layout designed for comfort, functionality, and efficient space utilization. Key features include open living and dinning area, functional kitchen, private bedroom suite, bathroom, work place and outdoor greenry.
This project focuses on designing a 2000sq. ft. space by blending functionality with aesthetics. the residence includes a hall, kitchen with dinning, 3 bed rooms(including master bedroom), recreational area, servant room, pooja room and car parking. The design process began with site planning and bubble diagrams, followed by detailed ground and first floor planning. The ground floor accommodates common and service areas, while the first floor includes private bedrooms and a recreational space. The project presentation includes photoshop floor plans, sectional views, elevation, 3d renders, ceiling layout, electrical drawings, and water supply and drainage planning, Ensuring both visual clarity and technical accuracy.
AutoCAD includes 2D technical drawings such as floor plan, sections, elevations and service layouts for proper measurement and professional workouts. Photoshop enhances drawings through rendering, colors, textures and realistic images which improves visual presentation.
A brutalist rocking chair inspired by the brutalist design movement, which emphasizes raw materials, bold forms, and structural honesty. It typically features solid wood or metal construction, strong geometric shapes, and minimal ornamentation. the design focuses on durability, functionality, and a powerful sculptural presence while maintaining comfort.
Building services refer to the essential systems installed in a building to ensure comfort, safety, and functionality. These include electrical systems, water supply, drainage, lighting, ventilation, and fire safety systems. Proper planning of building services enhances efficiency, sustainability, and overall performance of the structure.
2025 2025
This project presents apartment layout designed for comfort, functionality, and efficient space utilization. Key features include open living and dinning area, functional kitchen, private bedroom suite, bathroom, work place and outdoor greenry.
2025 2025
This project focuses on designing a 2000sq. ft. space by blending functionality with aesthetics. the residence includes a hall, kitchen with dinning, 3 bed rooms(including master bedroom), recreational area, servant room, pooja room and car parking.
The design process began with site planning and bubble diagrams, followed by detailed ground and first floor planning. The ground floor accommodates common and service areas, while the first floor includes private bedrooms and a recreational space.
The project presentation includes photoshop floor plans, sectional views, elevation, 3d renders, ceiling layout, electrical drawings, and water supply and drainage planning, Ensuring both visual clarity and technical accuracy.
2024 2025
AutoCAD includes 2D technical drawings such as floor plan, sections, elevations and service layouts for proper measurement and professional workouts. Photoshop enhances drawings through rendering, colors, textures and realistic images which improves visual presentation.
2025 2025
A brutalist rocking chair inspired by the brutalist design movement, which emphasizes raw materials, bold forms, and structural honesty. It typically features solid wood or metal construction, strong geometric shapes, and minimal ornamentation. the design focuses on durability, functionality, and a powerful sculptural presence while maintaining comfort.
2025 2025
Building services refer to the essential systems installed in a building to ensure comfort, safety, and functionality. These include electrical systems, water supply, drainage, lighting, ventilation, and fire safety systems. Proper planning of building services enhances efficiency, sustainability, and overall performance of the structure.
2025 2025
The software provides tools for geometric modeling, material application, lighting simulation, and photorealistic rendering. students use 3ds max to develop 3d models of buildings, interiors, furniture, landscapes, and other design elements. It also supports walkthrough animations and presentation renderings, helping learners visually communicate design concepts effectively.
To me, design is more than arranging furniture or selecting colors—it is about creating meaningful experiences. I believe every space tells a story, reflecting the personality, values, and lifestyle of those who inhabit it. My approach focuses on understanding these narratives and translating them into thoughtfully designed environments that balance creativity with practicality. I strive to transform ordinary spaces into inspiring, functional, and comforting interiors that not only look beautiful but also enhance everyday living, creating spaces that are timeless, expressive, and deeply connected to their users.
#InteriorDesign #DesignPhilosophy #MeaningfulDesign #DesignWithPurpose #ThoughtfulDesign #CreativeSpaces #InspiredInteriors #FunctionalDesign #TimelessInteriors #HumanCenteredDesign

About Us
About Us
The Academy of Applied Arts, with 14 years of heritage, specializes in transformative design. They are experts in crafting luxurious, timeless interiors and architecture, showcased across 6 countries, notably in New Delhi.
2020
Ranked among the
by the academic insights
2019
Ranked among the
by the academic insights
2018
Ranked among the
by the academic insights
2017
Ranked among the
by the academic insights
2016
Ranked among the
by the academic insights